Pronajato
Krylova Znojmo, 66904

Pronájem bytu 3+1, 79 m2 - Krylova, Znojmo-Přímětice

  • Lokalita Znojmo

  • Cena 15 000 Kč za měsíc

  • Typ3+1

  • Velikost 79 m²

Představuji vám příjemný byt s nadstandardně velkou kuchyňskou linkou v klidné části Přímětic, kde budete mít vše důležité na dosah.

+ 3+1
+ 79 m2
+ balkón 2,4 m2
+ sklepní kóje 4,3 m2
+ velká kuchyňská linka včetně spotřebičů
+ včetně vybavení
+ plastová okna
+ klimatizace
+ nízké náklady na bydlení
+ skvělá občanská vybavenost

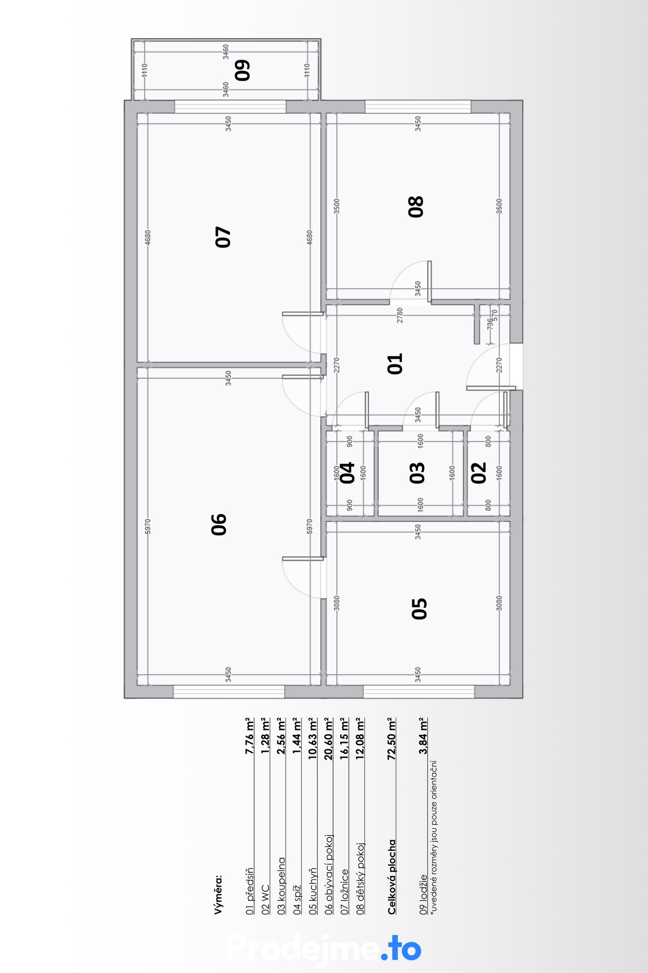
Tento byt s dispozičním řešením 3+1 nabízí plochu 79 m2 + balkón o 2,4 m2. Modernizace interiérů mu dodala svěží vzhled a především skutečně prostornou kuchyňskou linku. Byt se pronajímá s veškerým vybavením, které vidíte na fotografiích a je volný od 1.3.2026. Prohlídky jsou možné už nyní.

Byt sestává z předsíně s klimatizací, velkého obývacího pokoje, kuchyně s prostornou kuchyňskou linkou včetně spotřebičů, dále pak z dětského pokoje a ložnice se vstupem na balkón. Všechny tyto místnosti prošly úpravami a jsou laděné do světlých dekorů, které podporují příjemnou prosvětlenost celého bytu. Úložné prostory zajišťuje vlastní sklepní kóje o velikosti 4,3 m2.

Byt se nachází v nejvyšším patře čtyřpodlažního bytového domu bez výtahu na ulici Krylova. Díky své poloze nabízí nejen klid od ruchu ulice, ale také krásný výhled, ze kterého je vidět až na Znojmo. Přestože jde o nejvyšší patro, horka se v létě bát nemusíte – příjemnou teplotu zajišťuje klimatizace umístěná v předsíni. Bytový dům prošel revitalizací, takže poskytuje pohodlné bydlení s nízkými náklady na energie.

Dům leží v těsné blízkosti mateřské i základní školy, dětského a fotbalového hřiště a od supermarketu i bowlingu vás bude dělit méně než 100 metrů. Zastávka MHD propojující Přímětice s centrem Znojma leží necelých 50 metrů od domu.

Měsíční nájemné: 15.000 Kč
Zálohy na energie a služby: 2.883 Kč
Elektřina bude přepsána na nájemce, záloha cca 1.000 Kč/měsíc
Vratná kauce: 30.000 Kč
Provize RK: ve výši jednoho měsíčního nájemného + DPH 21%

2D půdorys
3D půdorys
  • Voda: Dálkový vodovod
  • Sklep: ano
  • Lodžie: Ano
  • Topení: Ústřední dálkové
  • Výtah: ne
  • Zařízený: Ano
  • Typ cesty: Asfaltová
  • Doprava: Silnice, MHD, Autobus
  • Elektřina: 230V
  • Druh objektu: Řadový
  • Užitná plocha: 79 m²
  • Typ budovy: Panelová
  • Lokalita: Znojmo
  • Typ nabídky: Pronájem
  • Lokalita kraj: Jihomoravský kraj
  • Lokalita obec: Znojmo
  • Stav stavby: Velmi dobrý
  • Právní servis: včetně právního servisu
Mgr. Lenka Vacková
Realitní makléřka

Mgr. Lenka Vacková

Chci odhad nemovitosti nebo konzultaci zdarma